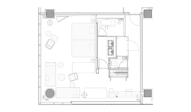
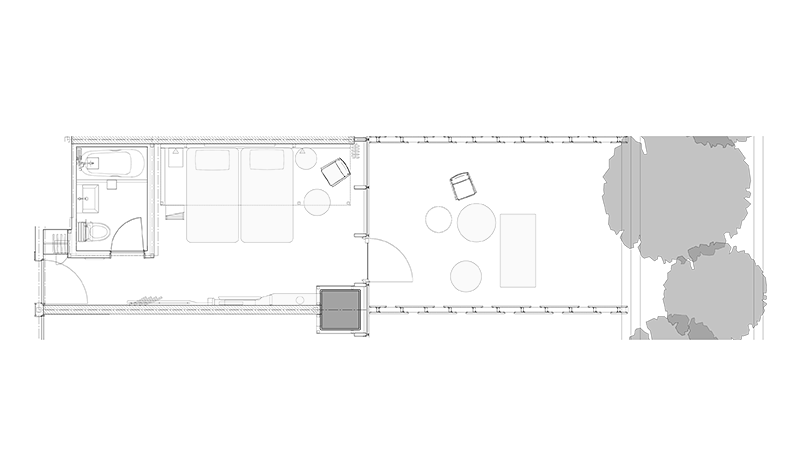
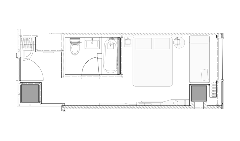
GUEST ROOM
平面佈置圖

平面佈置圖

平面佈置圖

平面佈置圖

平面佈置圖

平面佈置圖

平面佈置圖

平面佈置圖

浴巾/面巾/洗發水/護發素/沐浴露/洗手液/牙刷牙膏/晚裝/拖鞋/咖啡/礦泉水
浴巾/發圈/棉棒/剃須刀/剃須膏/發刷/紅茶等
Dreambed公司制造的床“Serta”/TV (可上網・YouTube無限觀看) /高速網路免費 (Wi-Fi) /冰箱/電熱水壺/電話機/保險櫃/吹風機/衣架/枕邊插座/帶溫水洗淨馬桶的衞生間/獨立空調
加濕空氣淨化器/充電器/延長線/熨鬥/熨衣板/冰墊/指甲刀/毛毯
我們接受VISA、JCB、萬事達卡、AMEX、UC、DC、NICOS、Diners Club、Discover和UnionPay。其他卡種請聯絡飯店諮詢。
交通IC卡(Suica、PASMO、ICOCA等)/ Rakuten Edy / WAON / iD
Rakuten Pay / PayPay / d Payment / au PAY / Merpay / Ginko Pay支付/ WeChatPay支付 / AliPay / 銀行支付 / Atokara