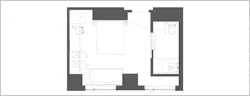
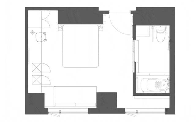
這間無障礙客房位於四樓。配備一張大床床和一張沙發床,最多可容納三人。客房內無台階,方便年長人士和使用輪椅的房客舒適入住。床下還設有空間,可存放行李箱等物品。
電視 / 免費高速網路(Wi-Fi) / 冰箱 / 冰桶 / 電熱水壺 / 電話 / 保險箱 / 吹風機 / 床下儲物空間 / 床頭插座 / Hit's(無限量 YouTube 觀看) / 帶清潔功能的馬桶 / 獨立空調
客房設置
浴巾/面巾/洗發水/護發素/沐浴露/洗手液/晚裝/拖鞋 (一次性) /衣物除臭噴霧
洗漱用品自助餐 (3F前臺)
卸妝油/洗面奶/化妝水/乳霜/發刷/發圈/剃須刀/剃須膏/牙刷·牙膏/棉簽/紅茶/煎茶/咖啡/忌廉粉/糖
燙發器/空氣淨化器/加濕器/充電器/延長線/熨鬥/熨衣板/褲線熱壓機/體溫計/開瓶器/開瓶器/臺式鏡子/臺燈/浴墊/DVD播放器/行李架/指甲刀/毛毯/追加枕頭/嬰兒床/各種遊戲類 (撲克牌等)
入住... 15:00/退房... 11:00
我們接受VISA、JCB、萬事達卡、AMEX、UC、DC、NICOS、Diners Club和UnionPay。其他卡種請聯絡飯店諮詢。
交通IC卡(Suica、PASMO、ICOCA等)/ Rakuten Edy / WAON / iD / nanaco / QUICPay
Rakuten Pay / PayPay / d Payment / au PAY / Merpay / FamiPay / LINE Pay / Yuucho Pay / ANA Pay / WeChatPay / AliPay
根據本酒店的住宿條款,從住宿基本費用中收取前一天20%、當天80%、不住宿100%的取消費用。但是,根據方案的不同,取消規定也會有所不同。請確認各套餐的詳細內容。
館內任何地方都能免費使用舒適的Wi-Fi服務。
YouTube在電視屏幕上無限制訪問。使用智能手機投射 (鏡像) 也是可能的。
房間裡每人準備了一瓶。
3樓休息室設有咖啡機。想要放松休息的時候請務必使用。
護膚用品,發圈,綠茶,紅茶等令人欣喜的洗漱用品很充實。詳情請見這裡。
行李箱等大件行李也可收納。房間很寬敞。
枕邊備有USB介面和插座。
對應信用卡·提前結算。可進行非接觸&智能入住。
帶新幹線的住宿方案由Time Design介紹。
關於住宿+新幹線的咨詢、預約的變更或取消等請聯係Time Design株式會社。
Time Design株式會社
TEL.0570-039866 (營業時間:周一~周五10:00-17:00※周末及節假日休息)