客房

客房

當前頁面
GRANBELL HOTEL OSAKA TOP >客房
好萊塢雙床

好萊塢雙床

雙床房位於4-18樓。好萊塢雙床床與床之間沒有縫隙,即使帶小孩也能舒適地入睡。床下還留有空間,可存放行李箱等物品。
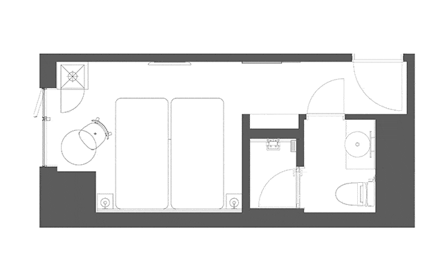
※房間圖片僅供參考。具體佈局可能因房間而異。

基本信息
寬度 17.1㎡
床寬 90cm×2台
定員 2名

佈局圖

放大佈局圖

預約這個房間

全部客房共通設備

電視 / 免費高速網路(Wi-Fi) / 冰箱 / 冰桶 / 電熱水壺 / 電話 / 保險箱 / 吹風機 / 床下儲物空間 / 床頭插座 / Hit's(無限量 YouTube 觀看) / 帶清潔功能的馬桶 / 獨立空調

洗漱用品

客房設置
浴巾/面巾/洗發水/護發素/沐浴露/洗手液/晚裝/拖鞋 (一次性) /衣物除臭噴霧

洗漱用品自助餐 (3F前臺)
卸妝油/洗面奶/化妝水/乳霜/發刷/發圈/剃須刀/剃須膏/牙刷·牙膏/棉簽/紅茶/煎茶/咖啡/忌廉粉/糖

出租備品 (免費)
※數量限定

燙發器/空氣淨化器/加濕器/充電器/延長線/熨鬥/熨衣板/褲線熱壓機/體溫計/開瓶器/開瓶器/臺式鏡子/臺燈/浴墊/DVD播放器/行李架/指甲刀/毛毯/追加枕頭/嬰兒床/各種遊戲類 (撲克牌等)

檢入檢出

入住... 15:00/退房... 11:00

信用卡

我們接受VISA、JCB、萬事達卡、AMEX、UC、DC、NICOS、Diners Club和UnionPay。其他卡種請聯絡飯店諮詢。

電子貨幣

交通IC卡(Suica、PASMO、ICOCA等)/ Rakuten Edy / WAON / iD / nanaco / QUICPay

二維碼結算

Rakuten Pay / PayPay / d Payment / au PAY / Merpay / FamiPay / LINE Pay / Yuucho Pay / ANA Pay / WeChatPay / AliPay

取消

根據本酒店的住宿條款,從住宿基本費用中收取前一天20%、當天80%、不住宿100%的取消費用。但是,根據方案的不同,取消規定也會有所不同。請確認各套餐的詳細內容。

設備和服務

全館WiFi免費

全館WiFi免費

館內任何地方都能免費使用舒適的Wi-Fi服務。

YouTube無限觀看

YouTube無限觀看

YouTube在電視屏幕上無限制訪問。使用智能手機投射 (鏡像) 也是可能的。

礦泉水服務

礦泉水服務

房間裡每人準備了一瓶。

免費咖啡

住客咖啡免費

3樓休息室設有咖啡機。想要放松休息的時候請務必使用。

酒店用品自助餐

酒店用品自助餐

護膚用品,發圈,綠茶,紅茶等令人欣喜的洗漱用品很充實。詳情請見這裡

床下收納空間

床下收納空間

行李箱等大件行李也可收納。房間很寬敞。

枕邊插座

枕邊插座

枕邊備有USB介面和插座。

自動登記機

自動登記機

對應信用卡·提前結算。可進行非接觸&智能入住。

客房一覽表

電話預約
+81-6-6563-7481