客房
客房
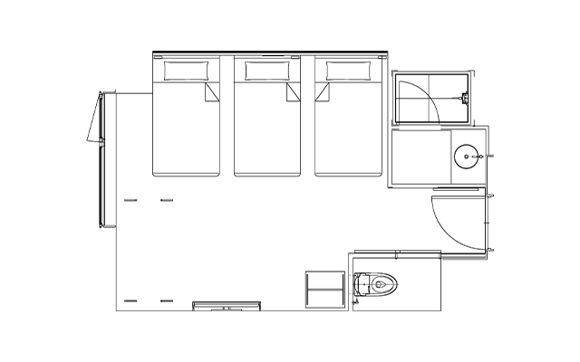
2至12樓設有三人房。
寬敞的房間適合家庭和團體使用。 沙發床最多可容納4人。
床底下空間也可以放行李箱。
*前一天預訂的可4人使用。 若您當天想預訂4人,請聯絡飯店。
電視(可上網)/ 免費高速無線網路 / 冰箱 / 電熱水壺 / 電話 / 保險箱 / 吹風機 / 衣架 / 床下儲物空間 / 枕頭出口 / Hit's(無限量YouTube觀看)/ 帶智能馬桶蓋的衛生間 / 夢幻萬事達卡臥床 / 獨立空調主臥床
客房設置
浴巾/面巾/洗發水/護發素/沐浴露/晚裝/拖鞋 (一次性) /衣物除臭噴霧/牙刷/剃須刀/剃須膏/發刷
※晚裝備有3種尺寸。
(L:125cm、S:120cm、兒童:84cm)
因尺寸規格,實物可能會略有差異。
洗漱用品自助餐 (1F前臺)
卸妝油/洗面奶/化妝水/乳液/護發素/化妝棉/發圈/棉簽/泡芙拋光機/浴巾/紅茶/煎茶/咖啡/忌廉粉/糖
輪椅/褲線熱壓機/空氣淨化器/加濕器/熨鬥/燙發器 (直發卷發) /帶燈臺鏡/毛毯/充電器
入住... 15:00/退房... 11:00
我們接受VISA、JCB、萬事達卡、AMEX、UC、DC、NICOS、Diners Club和UnionPay。其他卡種請聯絡飯店諮詢。
根據本酒店的住宿條款,從住宿基本費用中收取前一天20%、當天80%、不住宿100%的取消費用。但是,根據方案的不同,取消規定也會有所不同。請確認各套餐的詳細內容。
館內任何地方都能免費使用舒適的Wi-Fi服務。
YouTube在電視屏幕上無限制訪問。使用智能手機投射 (鏡像) 也是可能的。
房間裡每人準備了一瓶。另外還有咖啡。
行李箱等大件行李也可收納。房間很寬敞。
比平常高60cm,不易感到壓迫感的天花板高280cm的客房。
枕邊備有USB介面和插座。
可以在房間裡放松。
菜單在這裡。
對應信用卡·提前結算。可進行非接觸&智能入住。
也有在館內舒適度過的館內著裝。詳情請見這裡。
有未上學的孩子的情況下,我們會給您。
在1F休息室。(使用時間12:00~※售完即止)
護膚用品,發圈,綠茶,紅茶等令人欣喜的洗漱用品很充實。詳情請見這裡。
レンタカー付宿泊プランは、タイムデザインがご案内します。
宿泊+レンタカーに関するお問い合わせ、ご予約の変更・キャンセルなどは株式会社タイムデザインへご連絡をお願いいたします。
株式会社タイムデザイン
TEL.0570-039866(営業時間:月~金 10:00-17:00 ※土日祝日は休業)