Language
日本語 English 简体中文 繁體中文 한국어

客房

客房

當前頁面
GRANBELL HOTEL OTARU首頁>客房>高級雙人

高級雙人

高級雙人房位於3至5樓,可滿足各種需求,無論是與朋友觀光或商務旅行,都能滿足您的需求。寬敞的160公分寬床可確保您舒適入睡。床下還設有空間,可存放行李箱和其他物品。

基本信息
寬度 24㎡
床寬 160cm
定員 2名
備註 全部房間禁煙

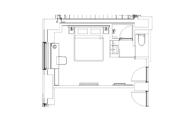
佈局圖

放大佈局圖

預約這個房間

全部客房共通設備

電視 (可上網) /高速網路免費 (Wi-Fi) /冰箱/電熱水壺/電話機/保險櫃/吹風機/衣架/枕邊插座/溫水洗淨馬桶/夢幻床公司制床“Serta”/AI智能音箱/獨立空調

洗漱用品

浴巾/牙刷/洗發水/護發素/沐浴露/發刷/剃須刀/剃須膏/拖鞋/晚裝/兒童洗漱用品(牙刷、拖鞋、睡衣)

※晚裝備有3種尺寸。
(L:125cm、S:120cm、兒童:84cm)
因尺寸規格,實物可能會略有差異。

出租備品 (免費)
※數量限定

輪椅/褲線熱壓機/空氣淨化器/加濕器/熨鬥/燙發器 (直發卷發) /充電器

檢入檢出

入住... 15:00/退房... 11:00

信用卡

我們接受VISA、JCB、萬事達卡、AMEX、UC、DC、NICOS、Diners Club和UnionPay。其他卡種請聯絡飯店諮詢。

取消

根據本酒店的住宿條款,從住宿基本費用中收取前一天20%、當天80%、不住宿100%的取消費用。但是,根據方案的不同,取消規定也會有所不同。請確認各套餐的詳細內容。

設備和服務

客房一覽表

返回頁首

+81-134-64-7573