客房

客房

當前頁面
GRANBELL HOTEL KYOTO首頁>客房
>頂級特大床(禁煙)

頂級特大床(無菸)

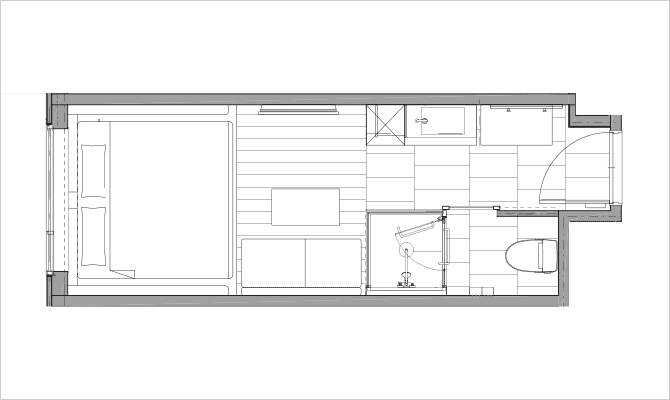
在窗邊設置了寬195cm的大尺寸的床,前面設置了寬敞的沙發和桌子。
面向房間的霜狀玻璃淋浴室有如行燈般明亮,讓您在柔和的光線中舒適放松。
另外,地下的房間配有格子花紋的瓷磚牆壁和植物被燈光照亮的寬敞的院內庭園,在日式情調中發揮地下的優點的安靜的房間裡能舒適地放松。

基本信息
寬度 17.7㎡
床寬 195㎝
定員 成人1名~2名,兒童1名
備註 全部房間禁煙

預約這個房間

全部客房共通設備

Android TV (YouTube無限觀看) /藍牙音箱/高速網路免費 (Wi-Fi) /冰箱/電熱水壺/電話/保險箱/吹風機/帶溫水洗淨馬桶

洗漱用品

客房設置
洗發水/護發素/沐浴露/臉部&洗手液/面巾/浴巾/晚裝/拖鞋/除臭噴霧/擦鞋器/礦泉水/滴濾咖啡(糖,牛奶,攪拌棒)
酒店用品自助餐 (1樓前臺)
卸妝油/洗面奶/化妝水/乳液/美容油/UV發油/防曬乳/牙刷/發刷/浴巾/化妝棉/剃須刀/剃須膏/面膜/紅茶/煎茶6種 (根據時期有變更)

出租備品 (免費)
※數量限定

輪椅/褲線熱壓機/空氣淨化器/加濕器/熨鬥/熨衣板/燙發器 (直&卷) /充電用轉換插頭/充電器(iPhone用,B型·C型)/針線包/指甲刀/行李架/臺燈/餐具/開瓶器/開瓶器/冰墊/毛毯/追加衣架/追加枕頭/淋浴椅

檢入檢出

入住... 15:00/退房... 12:00

信用卡

我們接受VISA、JCB、萬事達卡、AMEX、UC、DC、NICOS、Diners Club和UnionPay。其他卡種請聯絡飯店諮詢。

取消

根據本酒店的住宿條款,從住宿基本費用中收取前一天20%、當天80%、不住宿100%的取消費用。但是,根據方案的不同,取消規定也會有所不同。請確認各套餐的詳細內容。

設備和服務

全館WiFi免費

全館WiFi免費

館內任何地方都能免費使用舒適的Wi-Fi服務。

YouTube無限觀看

YouTube無限觀看

YouTube在電視屏幕上無限制訪問。使用智能手機投射 (鏡像) 也是可能的。

咖啡免費

咖啡免費

休息室裡有咖啡機。

礦泉水服務

礦泉水服務

房間裡每人準備了一瓶。

枕邊插座

枕邊插座

枕邊有插座。

酒店用品自助餐

酒店用品自助餐

護膚用品和發油、紅茶等令人欣喜的商品很豐富。查看洗漱用品一覽表

兒童洗漱用品套裝

兒童洗漱用品套裝

給未上學的孩子。

免費出借備品

免費出借備品※數量限定

可以免費使用空氣淨化器、加濕器、熨鬥等。查看出借備品一覽表

外幣兌換機

外幣兌換機

設置在1F休息室前。查看可用貨幣一覽表

投幣式洗衣房

投幣式洗衣房

B1F有收費的投幣式洗衣房。

電話預約
+81-75-277-7330